7 Havercourt Lane Rolleston
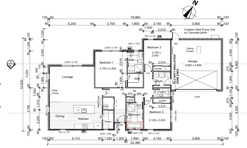
Floor Plan

Features
F&P drop door dishwasher
F&P 600mm multifunction oven
F&P 600mm induction cooktop
Artusi 600mm powerpack rangehood
Waste Disposal with air switch
Kitchen designed by Woodshack Kitchens which includes a 20mm stone benchtop
Blum soft close hinges
Soft close drawer runners
Tiled splashback in kitchen
Feltex Carpet
Tiled floor in ensuite, bathroom and laundry
Vinyl planking in kitchen, dining and entrance
2 x heated towel rails (ladder)
Mirrors to vanity units
Back to wall free standing bath
Wall hung vanities
EV prewire in garage
300L hot water cylinder
7.2kw Fujitsu Heat Pump (6 year warranty)
3 external taps
Plumbing for fridge
Nearby Public places
Te Rhutu Whio Primary School – 1km
Selwyn Aquatic Centre – 3.0km
Rolleston Town Centre – 2.8km
Rolleston College – 5.0km



