Lot 3 Little Owl Loop, Queenstown
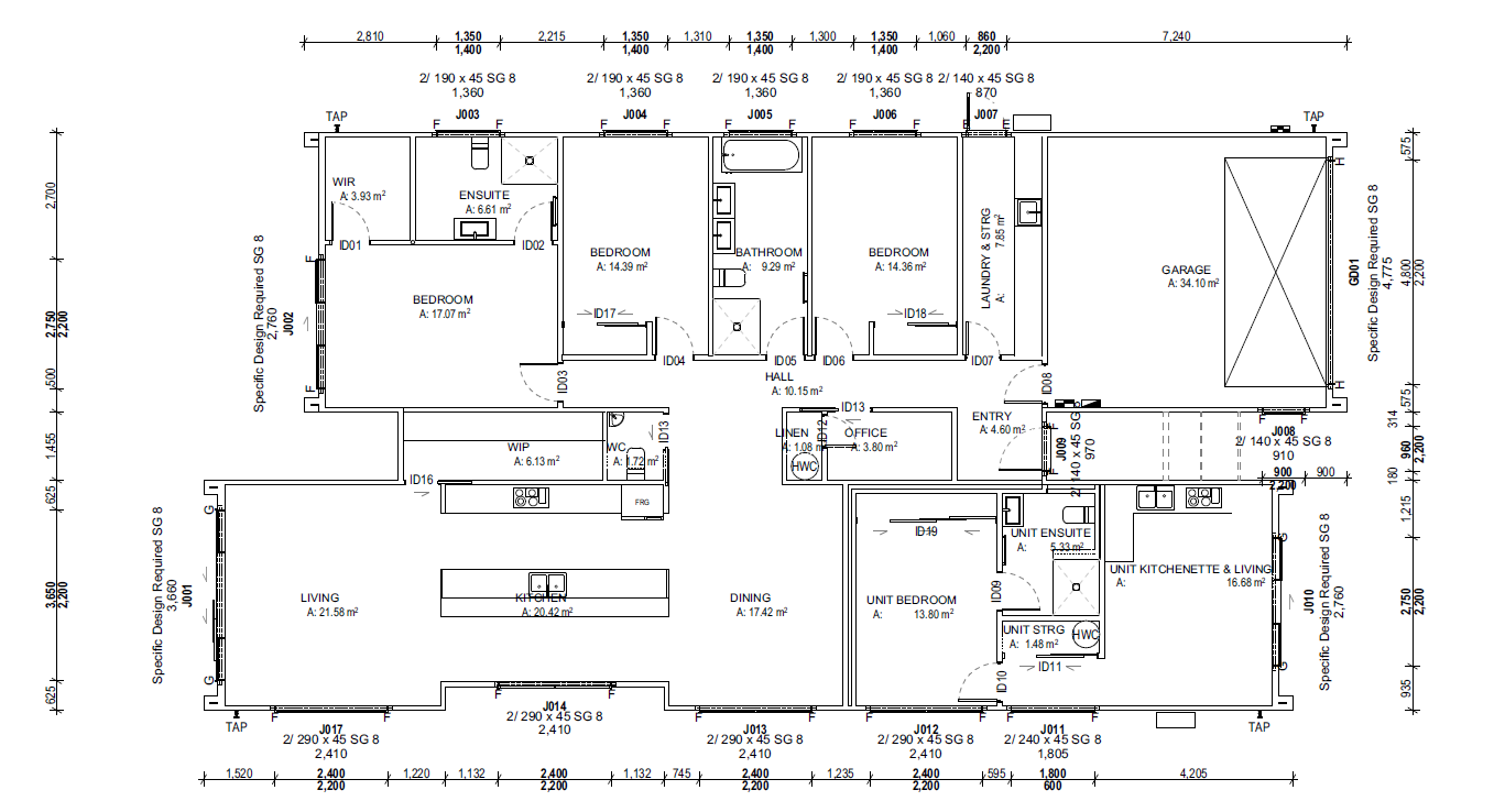
Floor Plan

Features
Seeking a house-and-income option in Queenstown? Look no further than this brand new home with stunning views of The Remarkables.
F&P drop door dishwasher
F&P 600mm multifunction oven
F&P 600mm induction cooktop
Artusi 600mm powerpack rangehood
Waste Disposal with air switch
Tiled splashback in kitchen
Feltex Carpet
Tiled floor in entry, kitchen, ensuite, bathroom and laundry
Tiled showers
3 x heated towel rails (ladder)
Mirrors to vanity units
Back to wall free standing baths
Wall hung vanities
EV prewire in garage
300L hot water cylinder in main house
150L hot water cylinder in attached unit
7.2kw Fujitsu Heat Pump (6 year warranty)
Underfloor Heating
3 external taps
Plumbing for fridge
Local Attractions
10 minutes drive to Queenstown Airport
20 minutes drive to central Queenstown
30 minutes drive to Arrowtown
25 minutes drive to The Remarkables ski area



