Started 3 February 2026
1 Views
0 Comments
0 Likes
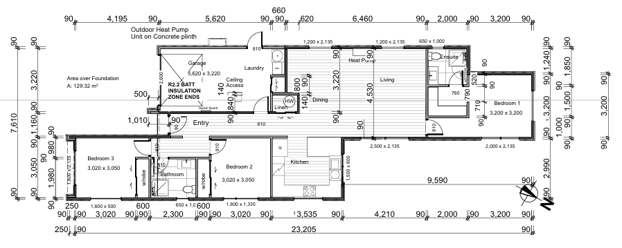
66 Korimako Cres, Selwyn Meadows
Property ID: Lot 61, House & Land Package.
$730,000
289 m263212026129.32
Floor Plan

Features
F&P drop door dishwasher
F&P 600mm multifunction oven
F&P 600mm induction cooktop
Artusi 600mm powerpack rangehood
Waste Disposal with air switch
Kitchen designed by Woodshack Kitchens which includes a 20mm stone benchtop
Blum soft close hinges
Soft close drawer runners
Tiled splashback in kitchen
Feltex Carpet
Tiled floor in bathrooms and WC
Vinyl plank floors in entry, kitchen and dining
2 x heated towel rails (ladder)
Mirrors to vanity units
Wall hung vanities
EV prewire in garage
300L hot water cylinder
7.2kw Fujitsu Heat Pump (6 year warranty)
3 external taps
Plumbing for fridge
Nearby Public places
Te Rhutu Whio Primary School – 2km
Southpoint Shopping Centre – 3.5km
Foster Park – 3.5km
Rolleston Town Centre – 5.5km
Rolleston College – 4km



